broadcast

恭喜李**成為年卡VIP享全站無廣告、聽書等多重福利

恭喜賴**成為年卡VIP享全站無廣告、聽書等多重福利

恭喜汶**成為年卡VIP享全站無廣告、聽書等多重福利

恭喜張**成為年卡VIP享全站無廣告、聽書等多重福利

恭喜葉**成為年卡VIP享全站無廣告、聽書等多重福利

恭喜李**成為年卡VIP享全站無廣告、聽書等多重福利

碎片會員 季卡15.00美金,年卡50.00美金,全站免廣告,海量小說免費聽,獨享VIP小說,免費贈送福利站、短劇站、漫畫站

我要加入
電廠醫院離奇命案
|
第2章

《電廠醫院離奇命案》第2章

ADVERTISEMENT

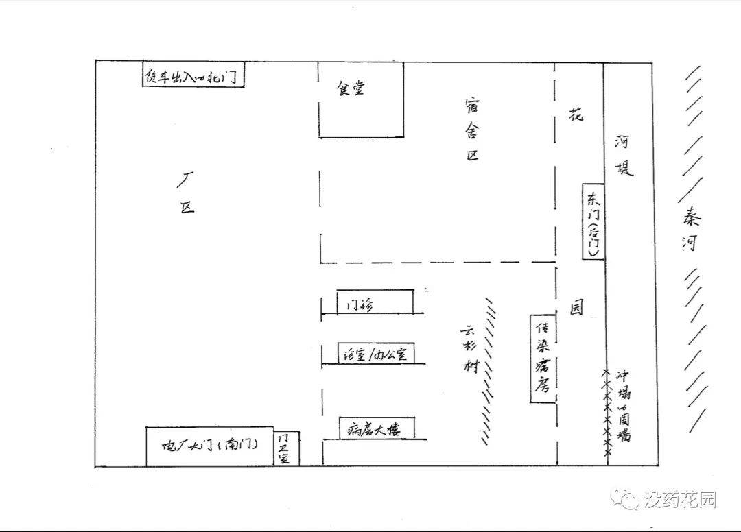
從平面圖,職醫院位于廠區角,宿舍區,宿舍區里面。

圍墻。為方便病散步,圍墻個后,鑰匙醫院清潔。 

6點半,清潔把后午6點再鎖

過,個后鎖沒義。暑期,洪漫過堤,把圍墻沖塌米。由于效益麼好,拿,所以處圍墻直沒修復,以踩著坍塌碎磚堆入廠區。

醫院主棟建筑,從,依次排列。最兩層兩層辦公;最邊挨著圍墻

ADVERTISEMENT

(廠區布局圖)

孟薇李梅所護士,位于病層,位置,孟薇平(包括昨夜)都里值班。

護士往,再加晨,李梅淑珍過清掃,所以現已經被徹底破壞。

技術干警勘查現,護士均無撬別、攀登痕跡,也無異常。 醫院園圍墻坍塌處及附堤也都沒提取到線索。

孟薇護士值班記錄顯示,12419點準交接班(孟薇4頂替李梅值班,等于自己自己交接);21點30分護士位王姓患者換過次藥。

除此之,再無其況。

ADVERTISEMENT

周建國熊穆負責詢問醫院員。李梅提起昨護士得很反常,并把孟薇包交們。熊穆打包,里面只幾塊

孟薇舍友淑珍,46點孟薇飯。孟薇回宿舍簡單洗漱后就值夜班淑珍沒排班,宿舍休息,所以最后次見到孟薇。

值班醫宏回憶,8點結束例,返回經過護士到過孟薇,個招呼。隨后就回到另里值班,此后就沒再遇到過孟薇。

經過番調查得,最后見到孟薇,應該就值班記錄里位王姓病院,49點30,曾往護士讓孟薇背部次藥。

 此,孟薇父母已從廠,廠里招待所。

ADVERTISEMENT

付費小説精選模塊

猜你喜歡

分享

分享導語
複製鏈接

溫馨提示

加入尊享VIP小説,享受全站無廣告閲讀,海量獨家小説免費看
進入VIP站點
端午節福利通知
取消月卡,升级为VIP季卡15美金,年卡50美金,原付费粉丝,月卡升级为季卡,年卡升级为永久卡。 另外,给大家找了一些福利权益,神秘入口正在搭建,敬请期待!
我知道了
碎片會員
重福利
全站0廣告
10w本優質小說免費暢讀,每日更新,純淨0廣告
聽書
每日更新,支持自動聯播,無彈窗,為你釋放雙眼,用耳朵享受閱讀的樂趣!
多站會員
免費送
全網福利小說免費看,臉紅心跳,享受成人快樂,短劇站、漫畫站免費送!
點擊預覽VIP網站 >>
季卡
美金 15.00
年卡
美金 50.00
信用卡(台灣)
Paypal/信用卡
提醒:已註冊用戶填寫用戶名後付費,未註冊用戶直接付款後系統生成默認用戶名、密碼
立即支付
聯繫客服
我是VIP 登入>>
客服聯繫方式
Messenger @381aiddf